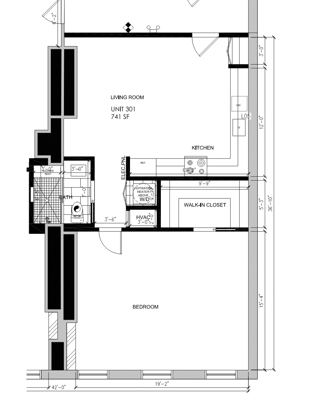
1602-04 Locust St Unit 301 Rental Plan

Leave a Reply

Your email address will not be published. Required fields are marked *